Wyszukiwanie Zaawansowane

jedna z najbardziej pożądanych lokalizacji na Phuket.

Idealna propozycja dla tych, którzy cenią sobie harmonię, wygodę i bliskość plaży, a jednocześnie oczekują wysokiego standardu i solidnej inwestycji na Phuket.

Ilość

564

Ceny od

500000 PLN

Obszar

18000 m2

Zakończenie

Q3 2028

Lokalizacja

Kamala - Phuket

Rodzaje apartamentów:

1 Sypialnia 26-46 m2

2 Sypialnie 64-98 m2

Penthouse 71-91 m2

Udogodnienia:

Basen

Centrum fitness i jogi

Sauna i jacuzzi

Przestrzeń coworkingowa

Łaźnia parowa

Spa i bar

Plac zabaw

Przestrzeń dla zwierząt

Biblioteka

Wspólna kuchnia

Plaże w pobliżu:

Kamala - 430m

Koncepcja

Kamala Coralina to nowoczesny projekt mieszkaniowy obejmujący 564 eleganckie apartamenty, położony zaledwie 430 metrów od malowniczej plaży Kamala — jednej z najbardziej pożądanych lokalizacji na Phuket. Kompleks składa się z 7-piętrowego budynku i oferuje funkcjonalne apartamenty z jedną lub dwiema sypialniami, o powierzchniach od 26 do 98 m².

Zakończenie budowy planowane jest na 2028 rok, co czyni projekt atrakcyjną propozycją zarówno dla osób poszukujących przyszłego domu nad morzem, jak i inwestorów myślących długoterminowo.

Za realizację odpowiada Rhom Bho Property — deweloper znany z wysokiej jakości wykonania oraz nowoczesnych, przemyślanych rozwiązań architektonicznych. Kamala Coralina łączy komfort, estetykę i funkcjonalność, oferując styl życia w jednej z najbardziej prestiżowych i spokojnych części wyspy.

To idealna propozycja dla tych, którzy cenią harmonię, wygodę i bliskość plaży, a jednocześnie oczekują wysokiego standardu i solidnej inwestycji na Phuket.

GALERIA

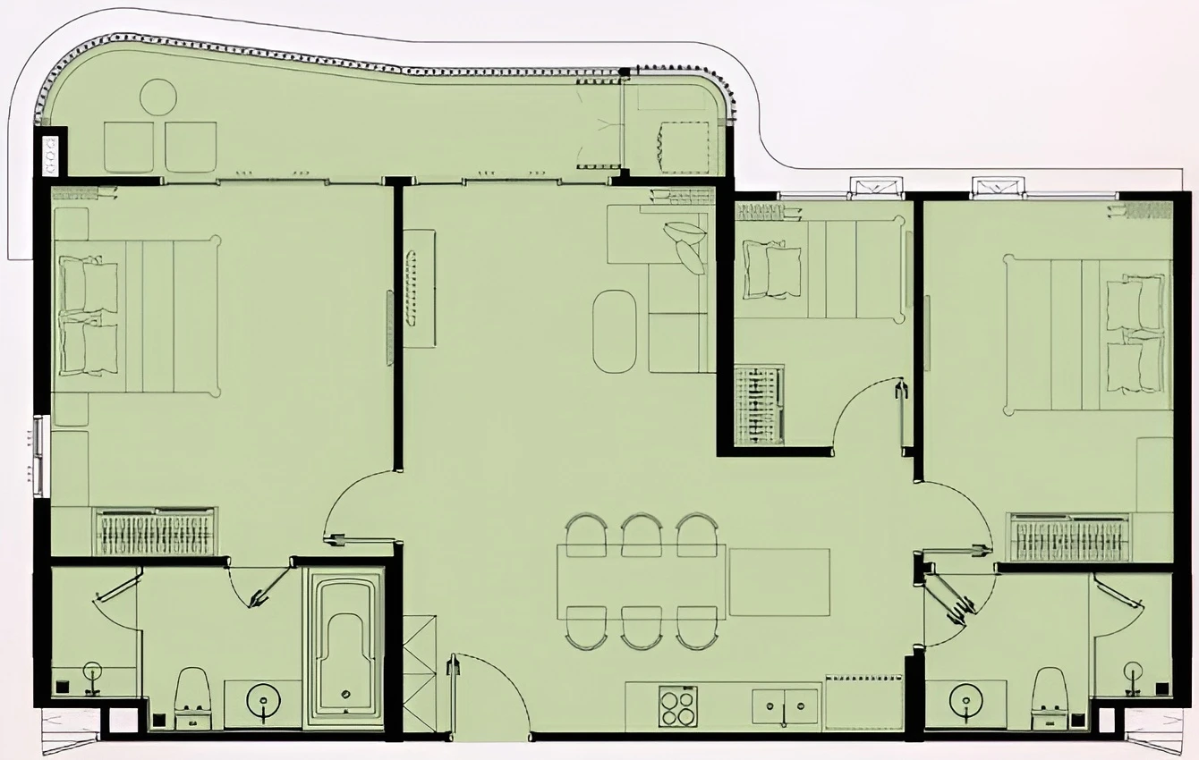
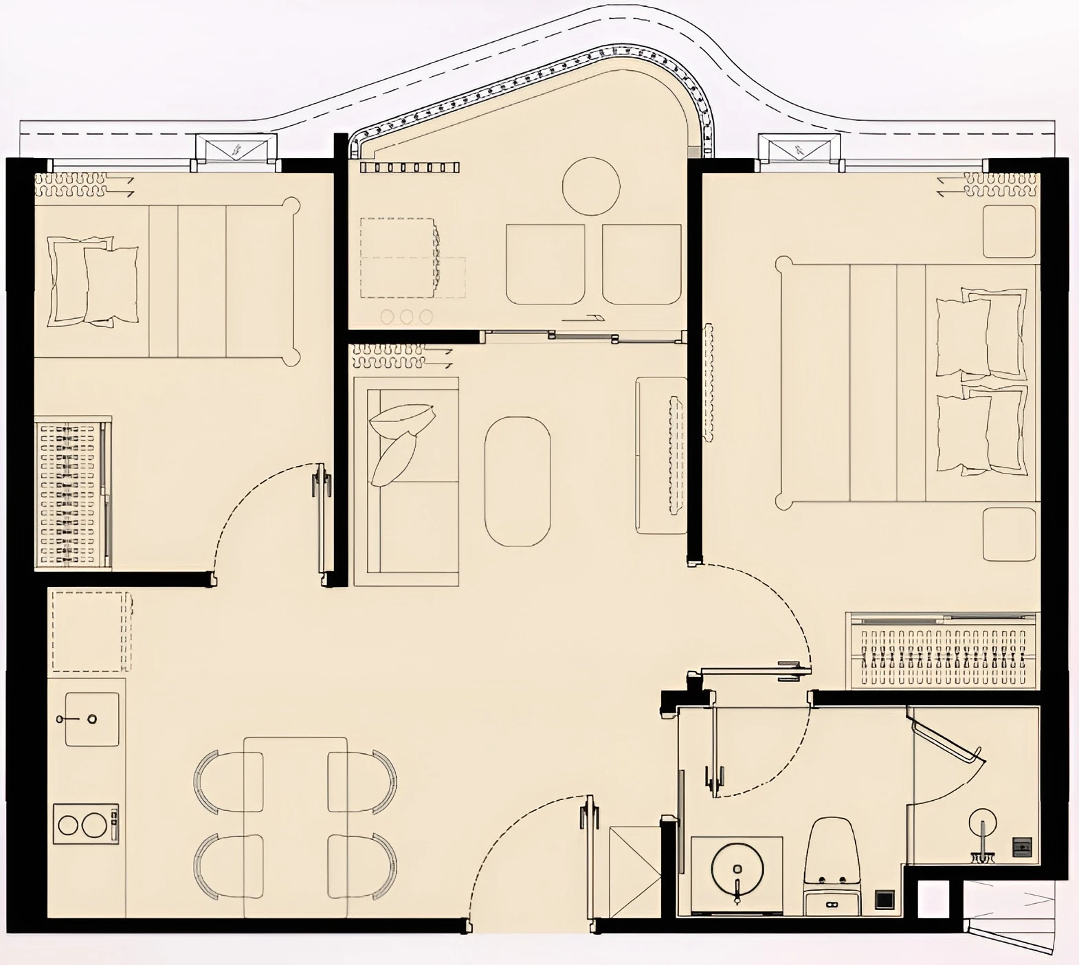
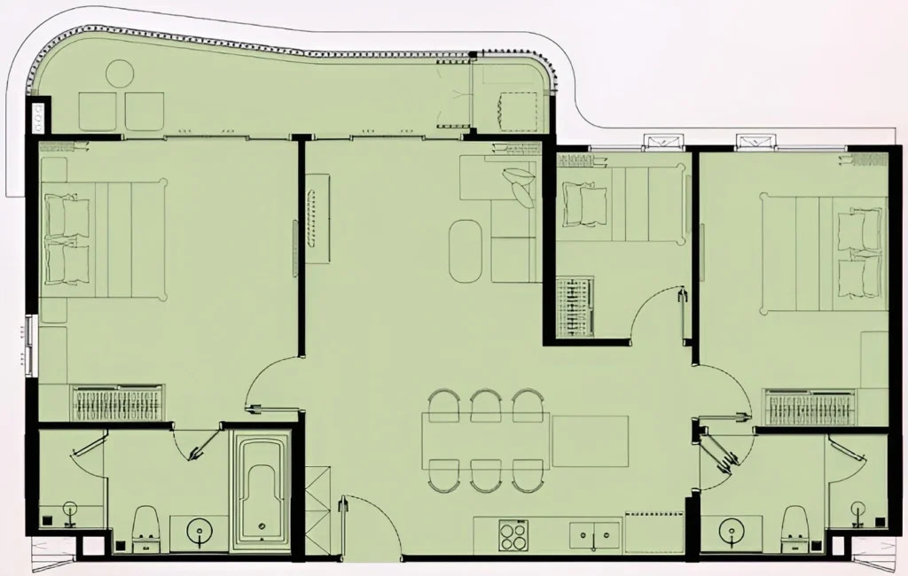
PLANY APARTAMENTÓW

PLANY KOMPLEKSU

Kontakt

Zapytaj o szczegóły - wyślemy Ci najciekawsze oferty!

Compare Listings